document.write('\ \ \ \ \ \ \
全室から壮大な阿賀川を望む「露天風呂付き客室」や、心落ち着く雰囲気の「一般客室」、
14畳もの広さを誇り、会津地区で初めてウェルカムベビーの
お宿認定を受けた「離れ」など、
一部屋ずつ趣の異なる客室が、ゆとりある豊かな時間を奏でます。

露天風呂付客室
\ \
一般客室
\ \
離れ 露天風呂付
\ \
離れ
愛犬と泊まれる
プレミアムツイン




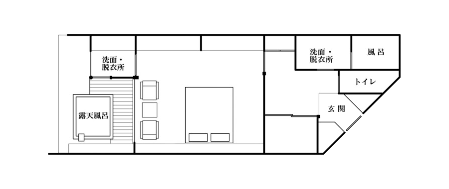
源泉掛け流しの「ひのき露天風呂」付のお部屋となり
ます。渓谷を望む景観にマッサージチェアなど、落ち着き
のある空間にダブルベッドをご用意した40平米のお部屋と
なります。
| 定員 | \2名 | \
|---|---|
| 広さ | \40平米 | \
| 景観 | \渓流側 | \
| 設備 | \バス・トイレ付 シーリー製1.7×2mの クイーンサイズダブルベッド×1 | \




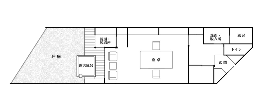
源泉掛け流しの「ひのき露天風呂」付のお部屋となり
ます。露天風呂に浸かりながら枯山水の坪庭越しに四季の
景色が楽しめる、情緒あふれる和室のお部屋です。
広々とした和室12畳+広縁、40平米のお部屋となります。
| 定員 | \4名 | \
|---|---|
| 広さ | \12畳+広縁 | \
| 景観 | \渓流側 | \
| 設備 | \広縁・踏込・内風呂・バス・トイレ付・ テレビ液晶32インチ | \




源泉掛け流しの「ひのき露天風呂」付のお部屋となり
ます。寝室とこたつ式の和室で、シモンズベッドの快適
さと和室の落ち着きを感じる贅沢なお部屋です。
| 定員 | \2名 | \
|---|---|
| 広さ | \40平米 | \
| 景観 | \渓流側 | \
| 設備 | \踏込・バス・トイレ付(バス部分は内風呂なし、シャワーブースのみ)・テレビ液晶32インチ・シモンズベットセミダブル(120×200cm)2台・冷蔵庫 | \

源泉掛け流しの「ひのき露天風呂」付のお部屋となり
ます。35平米のツインタイプには、シモンズベッドを
ご用意し、和室の落ち着きを感じる贅沢なお部屋です。
| 定員 | \2名 | \
|---|---|
| 広さ | \35平米 | \
| 景観 | \渓流側 | \
| 設備 | \踏込・バス・トイレ付・テレビ液晶32インチ ・シモンズベットセミダブル(120×200cm)2台 | \

源泉掛け流しの「ひのき露天風呂」付のお部屋となり
ます。渓谷を望む景観に露天風呂、落ち着きのある空間
にダブルベッドをご用意した35平米のお部屋となります。
| 定員 | \2名 | \
|---|---|
| 広さ | \35平米 | \
| 景観 | \渓流側 | \
| 設備 | \バス・トイレ付 | \



丸峰本館のスタンダートな落ち着いた雰囲気のお部屋で
和室12畳となります。
| 定員 | \4名 | \
|---|---|
| 畳数 | \12畳、広縁 | \
| 平米数 | \40平米 | \
| 景観 | \スタンダード和室タイプにより眺望などは ご指定できません。 | \
| 設備 | \内風呂・洗浄器付トイレ | \

渓谷を望む景観に、落ち着きのある和室に次の間が
付いたお部屋で、47平米の空間でゆったりとお過ごし
いただけます。
| 定員 | \5名 | \
|---|---|
| 広さ | \12畳+6畳 | \
| 景観 | \渓流側 | \
| 設備 | \広縁・踏込・バス・トイレ付・ テレビ液晶32インチ | \

渓谷を望む高層階に位置し、和室12畳+広縁に、
ツインベッドを備えた40平米のお部屋です。
落ち着いた雰囲気のお部屋でお過ごしいただけます。
| 定員 | \2名 | \
|---|---|
| 広さ | \12畳+広縁 | \
| 景観 | \渓流側 | \
| 設備 | \広縁・踏込・バス・トイレ付・ テレビ液晶32インチ | \

絶景を見下ろす景観と、ゆったりとした12畳の和室が魅力のお部屋タイプとなります。
豊かな大自然を眼下に、お寛ぎいただける和室は雰囲気となっております。
| 定員 | \4名 | \
|---|---|
| 広さ | \12畳+広縁 | \
| 景観 | \渓流側 | \
| 設備 | \広縁・踏込・バス・トイレ付・ テレビ液晶32インチ | \

3部屋からなる離れ風のお部屋「青芭蕉」は丸峰渓谷美
の宿川音でたった一部屋だけのお部屋で、角部屋ならで
はの絶景をお楽しみいただけます。数人でお入り
いただける内風呂は源泉掛け流しです。
| 定員 | \9名 | \
|---|---|
| 広さ | \15畳+13畳+10畳 | \
| 景観 | \渓流側 | \
| 設備 | \広縁・踏込・バス・トイレ付(温泉内風呂付)・ テレビ液晶32インチ | \




離れ山翠の最奥に位置する、一番広い純和風のお部屋。
3間続き(14畳+9.5畳+6.5畳)のお部屋は約130平米あり、
数奇屋造りの邸宅に住まうような趣きがあります。
広縁からの渓流大川の絶景も素晴らしく、贅を極めた間取りです。
また旦月には、広々とした温泉のお風呂がございます。
| 定員 | \5名 | \
|---|---|
| 畳数 | \14畳、9.5畳、6.5畳 | \
| 平米数 | \130平米 | \
| 景観 | \広縁からの渓流大川をご覧いただけます。 | \
| 設備 | \内風呂・洗浄器付トイレ | \

14畳の主室に2間の次の間がついた、山翠で標準的な
広さのお部屋で、95米の広さに内風呂があり、庭からは
大川の渓流が望めます。畳廊下によって独立した玄関、
次の間、主室とゆとりある間取りが静かなひとときを
演出します。
| 定員 | \5名 | \
|---|---|
| 畳数 | \14畳+7畳+5.5畳 | \
| 平米数 | \95平米 | \
| 景観 | \渓流側 | \
| 設備 | \内風呂・洗浄機付きトイレ・テレビ液晶27インチ | \

お部屋80平米の広々とした贅沢な空間で、大自然に囲まれて静寂と安らぎのひとときを感じるお部屋となっております。
ご家族でも十分にゆったりとお過ごしいただける広さとなっており、離れ山翠のスタンダートタイプの部屋となり、同じ客室タイプとして、弥生・麗月もご用意しております。
| 定員 | \5名 | \
|---|---|
| 畳数 | \14畳+6畳+5.5畳 | \
| 平米数 | \80平米 | \
| 景観 | \渓流側 | \
| 設備 | \内風呂・洗浄機付きトイレ・テレビ液晶27インチ | \

お部屋80平米の広々とした贅沢な空間で、静寂と
安らぎのひとときをお過ごしいただけます。
| 定員 | \5名 | \
|---|---|
| 畳数 | \14畳+6畳+5.5畳 | \
| 平米数 | \80平米 | \
| 景観 | \渓流側 | \
| 設備 | \内風呂・洗浄機付きトイレ・テレビ液晶27インチ | \

お部屋80平米の広々とした贅沢な空間で、静寂と
安らぎのひとときをお過ごしいただけます。
| 定員 | \5名 | \
|---|---|
| 畳数 | \14畳+6畳+5.5畳 | \
| 平米数 | \80平米 | \
| 景観 | \渓流側 | \
| 設備 | \内風呂・洗浄機付きトイレ・テレビ液晶27インチ | \




\
愛犬と泊まれるスーペリアツインがオープン!
\
愛犬目線に立ちながらも、落ち着きある空間を演出しました。敷地内には専用のドッグラン(ウッドデッキ)を完備しており、愛犬用アメニティも揃えております。
\
お食事はお部屋食のため、愛犬と離れることなくお過ごしできます。愛犬と特別な休日をお過ごしください。
\
小型犬まで宿泊可能です。
\
| 定員 | \4名 | \
|---|---|
| 平米数 | \55平米 | \
| 設備 | \バス・トイレ付・テレビ液晶50インチ 敷地内には専用のドッグラン(ウッドデッキ)を完備 | \
石鹸 / ハンドソープ / シャンプー / リンス / ボディーソープ /
男性用ヘアトニック / 男性用アフターシェイブローション / 女性用化粧品 / 女性用乳液
浴衣 / バスタオル / フェイスタオル / 歯磨き粉 / 歯ブラシ /
足袋 / 巾着 / くし / ヘアドライヤー / シューズクリーナー